Skip to content

Connecting to Existing

Yuyang Zhang Headshot

Student

Yuyang Zhang (B.Arch. '21)

Hometown

Chengdu, China

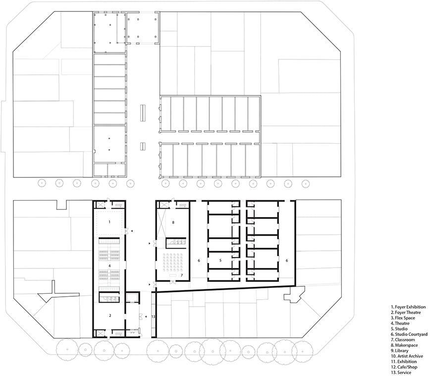
Located within the general Pobleanu district of Barcelona, the site is home to a preexisting factory complex called El Sucre. The preexisting factory buildings are composed formally by an assemblage of five primary brick buildings of varying footprints and heights, serving as defining qualities of the site itself. The architectural intent aims to establish a sense of continuity and sensibility with this existing fabric, while preserving its own autonomy as an artifact.

The urban and spatial qualities of this architectural piece are defined through a series of conceptual and tectonic layering, speaking towards a familiarity with the existing context through mass, materiality, scale, and sensual experience.