Award-winning architect Alan Chimacoff (’63, B.Arch. ’64) has been a significant force in architectural practice and education for decades. His building designs and master plans shape and enhance campus life at universities across the US, and his belief in architecture’s responsibility to its physical, social, and cultural settings informs the work of hundreds of graduates of some of the nation’s most respected architecture programs.
Chimacoff is an advocate for excellent, inventive designs that consider the “ambiance and ethos of a place.” His 1998 design for the Johnson Graduate School of Management at Cornell’s Sage Hall is a case in point — and a model for the adaptive reuse of a historic building.
“In my view, one has a serious obligation to respond responsibly to the clues that are there,” Chimacoff says. “At the same time, since whatever one makes becomes the context for the future, there is also a responsibility to leave clues for the next set of architects or designers whose buildings will be adjacent to yours.”
“It’s a reciprocal agreement between past, present, and future,” he adds.
In the case of Sage Hall, the challenge was to preserve and expand a deteriorating 1870s women’s dorm in order to create a 21st-century business school. Chimacoff used the original footprint to honor the building’s historical significance: It was the first women’s residence hall at the nation’s second-oldest coeducational university. Other, more modern design elements — including a dramatic, sky-lit commons — celebrate the building’s new identity as home to a vibrant business program.
Chimacoff began practicing architecture immediately after completing his B.Arch. degree. His first job was with Werner Seligmann, a renowned architect and urban designer who had been Chimacoff’s professor and mentor at Cornell — and later the innovative dean at Syracuse University. After Chimacoff earned his master’s in architecture from Harvard in 1969, the two served on Cornell’s faculty together for several years.
Although he designed a number of notable projects at Cornell and elsewhere in Ithaca — dining and residence halls, apartments, the Breazzano Family Center for Business Education, and the Laboratory of Ornithology — Chimacoff spent the bulk of his 50-plus-year career in his home state of New Jersey. For 25 of those years, he served on the faculty of Princeton University’s School of Architecture, including as director of architecture and director of graduate studies.

In recognition of his extraordinary contributions, the New Jersey chapter of the American Institute of Architects (AIA-NJ) named Chimacoff the recipient of the Michael Graves Lifetime Achievement Award in 2020. The organization’s highest honor, the award is reserved for individuals who have created “a significant body of work of lasting influence on the theory and practice of architecture.” The award also acknowledges Chimacoff’s service on numerous AIA juries.
Those who nominated Chimacoff cited his pivotal role in transforming college campuses at Arizona State, Columbia, Cornell, Duke, Johns Hopkins, Princeton, Rutgers, Syracuse, Virginia Tech, and more. They noted Chimacoff’s legacy of projects and people: his award-winning buildings and his students at Princeton and Cornell, who’ve followed in his footsteps as leaders in the profession and as sources of inspiration and support in the classroom.
Nominators also cited Chimacoff’s exceptional talent and distinctive viewpoint as a photographer. His interest in the art form dates back to his childhood when a friend suggested the two of them, along with another fifth-grade classmate, form a photography club. The friend handed out monthly assignments and led discussions about the resulting images.
“From this brilliant kid, at age ten, I learned that photographs and visual things have meaning beyond themselves,” Chimacoff says. “I realized that a picture is more than just the image itself.”
His passion for photography never waned, and in 2007, Chimacoff began pursuing it in earnest. By then, Adobe Photoshop had replaced the darkroom, and Chimacoff had years of architecture, urban design, and life experience to tap. He describes his photographic perspective as “shaped by my knowledge, as an architect, of real and illusory space, a love of materials and the making of things, and an abiding interest in an inherent contradiction between clarity and ambiguity.”
Chimacoff’s photos have been purchased by museums and private collectors and featured in galleries as part of individual and group exhibitions. At Cornell, his JAMuse exhibition, commissioned in 2013, celebrated the 40th anniversary of the Herbert F. Johnson Museum of Art, designed by I. M. Pei. Chimacoff’s photo essay included 47 images that explored the museum’s architectural themes and established its place on the Cornell campus — some portraying the building as sculpture and abstract art.
All reflected lessons learned during Chimacoff’s undergraduate years at Cornell, when the faculty included architectural education pioneers Colin Rowe, Werner Seligmann, and Lee Hodgden, among others. Chimacoff’s belief in — and preference for — contextualism is rooted in the urban design lessons that were an integral part of the Cornell architecture curriculum.
Back then, the curriculum included mandatory art classes, a requirement that fostered Chimacoff’s love of sculpture and introduced him to mentor and professor of sculpture Jack Squier (M.F.A. ’52). Even after Chimacoff completed the mandatory drawing and painting courses, he continued studying sculpture. His 20-foot-tall, 5-ton abstract concrete piece, made in Squier’s advanced class for architects, remains on display in the Sculpture Garden at the Cornell Botanic Garden.
Chimacoff has fond memories of those undergraduate years and “the greatest classmates on earth,” many of whom remain connected more than 60 years later. He recalls the camaraderie and pranks — dyeing chickens green on St. Patrick’s Day and releasing hordes of crickets on rival college campuses — that provided a welcome break from “an intense, demanding curriculum.” He also has maintained strong ties with Cornell as an institution, serving on the AAP Advisory Council, Cornell University Council, Cornell University Architecture Advisory Committee, and as a liaison between that committee and the Buildings and Properties Committee of the Board of Trustees.
Chimacoff retired from practice in 2019, after a 55-year career that included 16 years each as a principal and director of design with Hillier Group Architecture in Princeton, New Jersey, and as a founding principal of ikon.5 architects in Princeton and New York City. Although he left the faculty of Princeton University in 2013, Chimacoff continues to teach architecture.
These days, his students are senior citizens enrolled in an enrichment program based on the introductory architecture course that Chimacoff originally developed for Princeton undergraduates. Like the college students before them, the seniors are learning something priceless from a master in the field.
“I’m teaching them how to see,” Chimacoff says.
Projects
Click to view project images full screen.
Arizona State University College of Architecture and Environmental Design
1989
Cornell University Sage Hall Reconstruction
1998
Columbia University William and June Warren Hall
1999
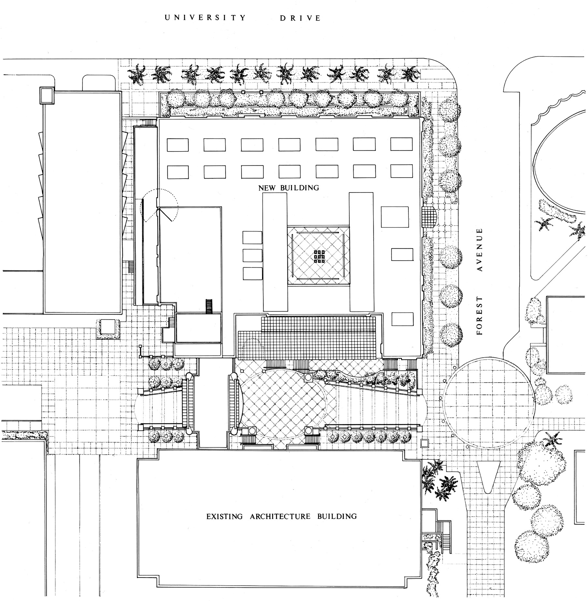
Princeton University Bowen Hall
1993
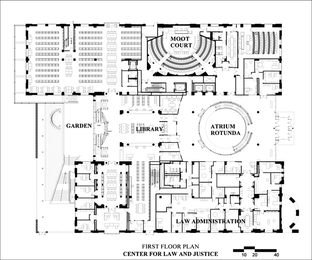
Rutgers University Center for Law and Justice
2000
Cornell University North Campus Plan and Residences
2001
Cornell University Laboratory of Ornithology
2003
Arizona State University Barrett Honors Residential College
2009
Collegetown Terrace Apartments
2017
Cornell University Breazzano Family Center for Business Education
2017